Ulrikkenborg Alle, Kongens Lyngby
Skitseforslag / 80 m² / 2025
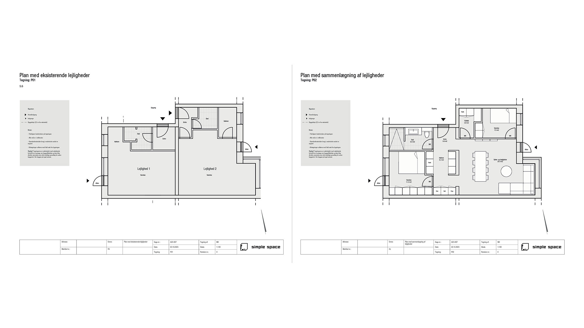
Sammenlægning af to studieboliger til én moderne 3-værelses lejlighed
Projektet omfatter sammenlægning af to mindre studieboliger i en klassisk funkisejendom i Kongens Lyngby. Rådgivningen bestod i at udarbejde en ny planløsning, der på én gang optimerer dagslys, rumlig sammenhæng og funktionalitet – uden at gå på kompromis med de eksisterende konstruktioner.
Da ejendommen er opført med bærende skillevægge mellem lejlighederne, blev der etableret to nye åbninger, som binder boligen sammen i et naturligt flow mellem entre, køkken og opholdsrum. De nye forbindelser blev placeret strategisk, så der kunne bevares flest mulige vægge og installationer, hvilket reducerede omfanget af byggearbejder og gav en mere økonomisk løsning.
Resultatet er en velproportioneret 3-værelses lejlighed med markant bedre oplevelse af rumlighed og sammenhæng. Det oprindelige aftryk med to separate boliger er nu opløst, og beboeren mødes i stedet af et lyst gennemgående opholdsrum og en funktionel planløsning, der passer til nutidens boligbehov.
Projektet viser, hvordan selv mindre arealer kan transformeres markant gennem en velovervejet arkitektonisk disponering – med fokus på lys, funktion og flow.


















